联系我们Contact
服务热线:0512-57996299

邮箱:js_kssj@163.com

网址:/

地址:江苏省昆山市玉山镇宝益路5号

您当前的位置: 首 页>新闻中心>技术交流

沉井施工技术

作者:  来源:本站  发表时间:2018-06-08 10:56:58   浏览:

     一、工程概况

木沉港泵闸及水立交工程二标段位于苏州市工业园区,主要内容为娄江水立交枢纽(含立交北闸10m钢坝1孔、立交南闸16m钢坝2)。水立交采用2D3200钢顶管过娄江,总长504m,顶管两端分别设始发井和接收井,顶管两端通过埋地箱涵与现状河道连通。水立交北侧钢坝闸为单孔净宽10m钢坝,水立交南侧钢坝闸为两孔单孔净宽16m钢坝。

本工程等别为Ⅱ等。立交地涵主体结构,钢坝闸主体结构、内外河消力池、翼墙等主要建筑物为2级,次要建筑物为3级;临时建筑物为4级水工建筑物。

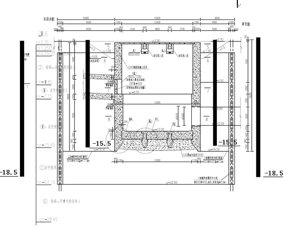
沉井为钢筋砼矩形结构,分工作井和接收井两个单体建筑。工作井平面尺寸15m*17.2m(长*宽,余同),接收井平面尺寸11m*17.2m,工作井高度19m,接收井高度18m外壁为直线,内壁为台阶型-6.5m收台减薄,上部壁厚1.3m,下部壁厚1.5m-8.8m~-12m为顶管预留洞口。

主要工程量如下表:

序号

主要项目

单位

数量

南岸始发井(15m*17.2m

1

沉井部分钢筋混凝土井筒

m3

1800

2

钢筋混凝土底板

m3

240

3

混凝土封底

m3

360

4

钢筋

t

270

北岸接收井(11m*17.2m

1

沉井部分钢筋混凝土井筒

m3

1372.5

2

钢筋混凝土底板

m3

160

3

混凝土封底

m3

240

4

钢筋

t

190

始发井和接收井施工均采用沉井法施工。我方计划三次浇筑、一次下沉,始发井三节分别为8.2m5.6m5.2m,接收井三节分别为8.2m5.6m4.2m。在采取三轴水泥搅拌桩围封措施后,沉井采用排水下沉施工,干封底的施工方法。在施工过程中一开始就应从思想上高度重视,严格按操作规程和施工规范施工,把好各个关口,贯彻以“预防为主,纠偏为辅”的原则。

     二、施工前期准备工作

工程质量的好坏以及工程是否能够顺利进行与工程开始阶段的准备工作密不可分,为此,我们将进行如下的准备工作:

 2.1概况及地质

根据设计图纸,本工程始发井位置地平标高为+2.7米,从现有地平至标高+1.25米处为填土,+1.25米至-4.65米为灰黄色粉质粘土,-4.65米至-7.65米为灰色砂质粉土,-7.15米至-15.65米为灰色粉细沙,-15.65米至工作井最低作业面为灰色粉质粘土。

               

根据设计图纸,本工程接收井位置地平标高为+3.7米,从现有地平至标高+0.21米处为填土,+0.21米至-3.89米为灰黄色粉质粘土,-3.89米至-6.89米为灰色砂质粉土,-6.89米至-15.39米为灰色粉细沙,-15.39米至工作井最低作业面为灰色粉质粘土。

2.2场地平整至要求标高,按施工要求清除沉井范围内的杂物。

2.3按施工总平面布置,修建施工场地、排水沟、截水沟,安装临时水、电路,安设施工设备,并试水、试电、试运转。

2.4按设计总图和沉井平面布置要求,设置测量控制网和水准基点,进行定位放线,定出沉井中心轴线和基坑轮廓线,作为沉井制作和下沉定位的依据。

2.5施工前充分进行技术交底,使施工人员了解并熟悉工程结构、地质和水文情况,了解沉井制作和下沉施工技术要点、安全措施、质量要求及可能遇到的各种问题和处理方法。

2.6在沉井施工前,按照设计图纸要求,我方需完成三轴水泥搅拌桩止水帷幕,待止水帷幕完成后开始沉井施工。

     三、沉井计算

3.1砂垫层计算


砂垫层计算简图

 


   其中:p为基底压力值,G为基底承受的荷载(kN)S为井壁与土基受力面积(m2),hs为砂垫层厚度(m)为砂天然重度,取15KN/m3为素混凝土垫层宽度,地基灰黄色粉质粘土层,地基承载力150Kpa,地基极限承载力300Kpa为砂垫层压力扩散角(°),一般取30°。hc不小于150mm,不大于250mm,混凝土垫层强度等级不低于C20hc计算取100mmb1计算取150mm

(1)始发井

根据《沉井与气压沉箱施工规范》(GB/T 51130-2016,4.1.5规定:“沉井与气压沉箱首节制作时的基底压力不应大于下卧层地基承载力特征值,以后各节接高制作时应符合地基极限承载力的要求”

我方计划第一节沉井浇筑8.2m,混凝土约776m3,钢筋约116t

第一节沉井G1=(776*2.4+116)*10=19784kN;施工荷载(脚手架+模板)取0.3t/m2G2=0.3*17.2*15-14.2*12*10=262.8kN,固定荷载系数取1.2,可变荷载系数取1.4

基底承受的荷载G=1.2*G1+1.4*G2=24108.7kN

S=(1.8+2hs*tan)*(15.7+13.5)*2

计算后,当砂垫层hs=1.2mS=186.048m2;

p=129.58kPa

第二节、第三节全部接高后,G1=(1800*2.4+270)*10=45900kNG2=262.8kN

基底承受的荷载G=G=1.2*G1+1.4*G2=55448kN

计算后,当砂垫层hs=1.2mS=186.048m2

p=298.03kPa地基极限承载300kPa

(2)接收井

我方计划第一节沉井浇筑8.2m,混凝土约625m3,钢筋约86.5t

第一节沉井G1=(625*2.4+86.5)*10=15865kN;施工荷载(脚手架+模板)取0.3t/m2G2=0.3*17.2*11-14.2*8*10=226.8kN,固定荷载系数取1.2,可变荷载系数取1.4

基底承受的荷载G=1.2*G1+1.4*G2=19355.52kN

S=(1.8+2hs*tan)*(15.7+9.5)*2

计算后,当砂垫层hs=1.0mS=148.92m2;

p=129.97kPa

第二节、第三节全部接高后,G1=(1372.5*2.4+190)*10=34840kNG2=226.8kN

基底承受的荷载G=G=1.2*G1+1.4*G2=42125.5kN

计算后,当砂垫层hs=1.0mS=148.92m2

p=282.87kPa地基极限承载300kPa

综上计算,

我方计划始发井刃脚下设置1200mm砂垫层、150mmC25混凝土垫层;接收井刃脚下设置1000mm砂垫层、150mmC25混凝土垫层。

制作时采用级配较好的中粗砂,分层洒水夯实,每层厚度为20-30cm为宜,其深度根据以保证砂垫层的密实度,素混凝土垫层制作过程中,应严格控制其平整度,其平整度偏差应控制在±10mm内,以免在沉井开始制作时就出现不必要的倾斜。

 3.2下沉系数计算


Kst为下沉系数

为沉井自重;为地下水浮托力,本方案采取排水下沉,取0

为侧壁与土的总摩阻力;

为刃脚下地基极限承载力,当掏刃脚下沉时取0

为中隔墙及地梁下地基极限承载力,当掏刃脚下沉时取0

始发井

始发井准备下沉时,

GK=45900kN=0

=17.2+15*2*10*5=3220kN,填土高度取5米,fk=10kPa

=17.2+15*2*0.4+1.1/2*300=18354kN

=6+13.2*300=5760kN

=45900/3220+18354+5760=1.68

计算得知,下沉系数大于1,表明刃脚的砖砌基础拆除后沉井会下沉,为防止突沉,要分批对称拆除刃脚下基础,使沉井缓慢下沉。

沉井初沉

当外围井壁刃脚进入土体内0.6m,隔墙下的砂垫层为0时,对沉井稳定不利,该工况下的下沉系数计算:

=45900kN=0

=17.2+15*2*40*1.2+3220=6411.2kN

=17.2+15*2*0.4+1.1/2*300=18354kN

=6+13.2*300=5760kN

=45900/6411.2+18354+5760=1.504

计算得知,下沉系数偏高,表明容易出现突沉,要分批对称拆除刃脚下基础,使沉井缓慢下沉。

沉井下沉至设计标高2m时,

=45900kN=0

=17.2+15*2*10*5+35*2.65+30*2.5+40*7.35=32925.7kN

=17.2+15*2*0.4*400=10304kN,刃脚下留土

=0

=45900/32925.7+10304=1.06。符合要求。

下沉稳定系数计算,规范规定,=0.80~0.90

=45900kN=0

=17.2+15*2*10*4.5+35*2.65+30*2.5+40*8.5+25*0.85=36965.6kN

=17.2+15*2*0.4+1.1/2*200=12236kN

=6+13.2*200=3840kN

=45900/36965.6+12236+3840=0.865。符合要求。

3.3抗突涌渗流稳定性计算

沉井下沉过程中穿越112层,刃脚插入层粉质粘土中。由于我方已采用三轴水泥搅拌桩止水帷幕,12层含水量不多,我方计划布置深井降水,防止微压水头在井底产生流土、流砂、管涌等。随着沉井下沉深度增加,经验算,层承压水在井底将产生突涌的风险,因此应采取降水减压的措施。

抗突涌计算:

我方计划在沉井围封止水帷幕的外围10米,设置管井降水,具体降水方法见后述。

    四、沉井施工流程步骤

测量放样→基坑开挖→地基处理及刃脚垫层施工→第一节立井筒内模和支架→第一节钢筋挷扎立外模和支架→第一节浇捣混凝土→第一节混凝土养护拆模→第二节立井筒内模和支架→第二节钢筋挷扎立外模和支架→第二节浇捣混凝土→第二节混凝土养护拆模→第三节立井筒内模和支架→第三节钢筋挷扎立外模和支架→第三节浇捣混凝土→第三节混凝土养护拆模→支架拆除→封砌预留孔→管井安装及降水→凿除垫层→挖土下沉→沉降观察→封底→浇筑底板混凝土→混凝土养护→顶管施工完毕后顶板制作。

4.1测量放样

整平场地后,根据沉井的中心座标定出沉井控制桩并进行基坑开挖边线定位。施工放样结束后,须经监理工程师复核准确无误后方可开工。

4.2基坑开挖

根据沉井设计图纸和工程地质报告所揭示的地质情况,沉井基坑开挖深度取4米,沉井刃脚外侧面至基坑坡脚留0.8m工作面,基坑边坡采用11放坡。经监理工程师认可的基坑开挖边线确定后,即可进行挖土工序的施工。四角设集水井,集水井应比排水沟低0.5m,挖土采用1台挖掘机进行。配合人工修坡和平整坑底,挖出的土方用自卸车运至弃土场堆放。基坑底面的浮泥应清除干净并保持平整和干燥,集水井汇集的雨水及地下水及时用水泵抽除,防止积水而影响刃脚垫层的施工。

4.3地基处理施工

刃脚及地梁、中隔墙垫层采用砂垫层和混凝土垫层共同受力,我方计划始发井刃脚下设置600mm砂垫层、150mmC25混凝土垫层;中隔墙及地梁下设置1200mm砂垫层、150mmC25混凝土垫层。

接收井刃脚下设置600mm砂垫层、150mmC25混凝土垫层;中隔墙及地梁下设置1200mm砂垫层、150mmC25混凝土垫层。

混凝土垫层表面应用水平仪进行校平,使之表面保持在同一水平面上。为保证沉井下沉时井身安全和控制下沉标高,在沉井刃脚及地梁、中隔墙施工时,设置混凝土垫层和砂垫层提高地基承载。

4.4刃脚支设

沉井制作下部刃脚的支设采用Mu10 砖砌结构,沉井刃脚接触面必须夯实,然后抹50mm厚砂浆并铺一层油毛毡。如下图所示。

4.5沉井井壁制作

4.5.1模板及支撑

当素砼垫层强度达到75%设计强度后,支模制作第一节沉井。我方计划中隔墙与沉井井壁同时浇筑,第一节沉井浇筑至地梁顶高程位置时,暂停浇筑,迅速将地梁顶部用模板密封,然后继续浇筑沉井,以免地梁位置处混凝土溢出。

支架与模板采取分离安装,模板采用木模板。在预留孔等特殊部位采用木模,在沉井插筋部位2寸木板间隔拼装,拼装的木模其表面进行刨光,拼缝严密平整不漏浆。围檀立筋采用φ50钢管或8#槽钢,拉杆螺栓采用φ16圆钢,加工时要根据墙体厚度设置限位,中间加焊钢板止水片,止水片尺寸不小于3×50×50,止水片于螺栓杆的焊接位周边焊,焊缝饱满,逐个检查焊接质量。拉杆水平间距45cm,垂直间距45cm

模板安装顺序原则上是先立内模,再立外模。模板与钢筋安装相互配合进行,若妨碍绑扎钢筋的模板,要待钢筋安装完毕后再立模。模板拼缝要严密,表面的平整度、光洁度、垂直度要符合规范要求,安装前模板表面要涂脱模剂,便于脱模并使混凝土表面光洁,如下图所示。

 

沉井井壁模板示意图

4.5.2钢筋制作安装

始发井钢筋工程量约为270t,接收井钢筋工程量约为190t

钢筋的表面应洁净,使用前将表面油渍、鳞锈等清理干净;钢筋应平直,无局部弯折;钢筋接头:直径在16mm以上热轧钢筋接头宜采用闪光接触对焊或用电弧焊。采用电弧焊的搭接焊或绑条焊时,两搭接钢筋的轴线必须在同一直线上,搭接长度、焊接高度必须符合规范要求。

采用闪光接触对焊时,应先做试验确定焊接参数,先焊接二个试件,将试件接头弯曲90°作冷弯试验,外侧的横向缝宽度不得超过0.15mm时,方可按确定的焊接参数正式焊接。焊接前钢筋端面与电焊机电级接触的表面,要清除油渍、铁锈和其他杂质。刚焊完的钢筋在移动时,不得使风筋受弯,也不能在地上碰撞,以免损伤接头。两根钢筋的轴线在接头处的偏移不得大于0.1d,并不得大于2mm,轴线曲折倾角不得大于4°。

同一截面内的受拉钢筋,其焊接接头的截面积之和不得超过钢筋总截面的50%。钢筋最小搭接长度LeE=1.2La

钢筋最小锚固长度:钢筋最小锚固长度与砼的标号,钢筋种类、结构的抗震等级有关,必须达到设计图纸的要求。

钢筋规格、尺寸应符合设计图纸要求和规定,绑扎钢筋时应采用撑件将二层钢筋位置固定,保证钢筋设计间距。为了保证保护层的厚度,应在钢筋与模板之间设置控制保护层的砂浆垫块,垫块应梅花形设置。钢筋绑扎完成后,应上报监理工程师进行隐蔽验收。隐蔽验收合格后,方可进行立外模。

4.5.3混凝土浇筑

始发井第一节混凝土方量约776m3,第二节约531m3,第三节约493m3

接收井第一节混凝土方量约625m3,第二节约427m3,第三节约320m3

模板和支架工序完成后,经监理工程师进行验收合格,方可进行混凝土的浇筑。混凝土浇筑前应严格检查各种预留孔、预留管和预埋件的位置和几何尺寸,严禁漏放和错放。采用掺添早强减水剂的泵送自拌混凝土。

混凝土浇筑时的自由高度不能大于2m,混凝土沿沉井周围分层均匀浇灌,考虑混凝土初凝时间及混凝土每小时泵送量,混凝土每层浇筑高度不超过30cm,上下两层混凝土浇筑间歇时间不得超过2h。振捣时防止漏振和过振现象,确保混凝土质量。每次浇筑混凝土分层高度要仔细控制并加强沉井平面高差和下沉量的观测,以免沉井井壁产生施工裂缝、沉井地基不均匀下沉或倾斜。

每次浇筑混凝土前做好准备工作及技术交底,按规范做好坍落度、抗渗、抗压的试验工作。施工中严格控制层差,杜绝冷缝出现,混凝土振捣时振捣器应插入下层混凝土10cm左右,注意不漏振、过振,遇穿墙管等局部变化处及钢筋密集处应慢进料精心振捣,分区交界处延伸振捣1.5m左右,确保混凝土内实外美,每节混凝土要一次连续浇筑完毕。

沉井接高部分施工缝处设置止水槽,在浇筑新混凝土前须将表面凿除全部表面浮浆层,露出骨料并清洗干净,将施工缝充分润湿,润湿时间应在24h以上,用同标号水泥浆接浆,厚12cm

4.5.4养护及拆模

混凝土浇筑完成后应及时养护,养护方法采用自然养护和塑料膜覆盖法。在养护过程中,对混凝土表面浇水湿润,严禁用水泵喷射而破坏混凝土。养护时应确保混凝土表面不发白,至少养护七天以上。

养护期内,不得在混凝土表面加压、冲击及污染。在拆模时,应注意时间和顺序。拆模时间控制在混凝土浇筑后的34天内进行,过早或过晚的拆模对混凝土的养护都是不利的;拆模顺序一般是先上后下,小心谨慎,以免对混凝土表面造成破坏。对于分段浇筑混凝土部位,应保留最后一排模板,利于向上接模。

4.5.5封砌预留孔

严格按照设计图纸的要求,设置和封砌各种预留孔,并保证在沉井下沉过程中,预留孔内不渗水。

4.5.6施工缝设置和处理

本沉井工程采用现浇混凝土,为确保混凝土供应的速度和质量,现场浇捣混凝土采用商品混凝土。根据以往的工程实践发现,施工缝是沉井渗漏的薄弱环节。施工中采取以下措施妥善处理:

①井壁施工缝留设成200mm高、300mm宽的凹槽形,外高内低

②井壁钢筋绑扎及混凝土浇捣前,必须将新老结合施工缝处松动石子、浮浆凿除,清除干净,洒水湿润,先铺一层与混凝土配比相同的水泥砂浆,厚度宜为1530mm;混凝土应细致捣实,使新旧混凝土紧密结合。

③沉井井壁与后浇隔墙相连接处,按设计要求进行留设凹槽。

④为防止今后井壁发生渗水现象,在拆模后对对拉螺栓孔处进行防水处理。对拉螺栓孔的内外端部,在凹进部位用12水泥砂浆抹平,外层做10毫米厚防水砂浆灰饼,再涂刷两层防水胶将其覆盖。

4.6沉井下沉

4.6.1降排水措施

⑴降水井布设

我方计划布置23个降水井,考虑到沉井施工对降水井的影响,外围降水井与沉井外壁距离约10m,内围降水井与沉井外壁距离约4m,在沉井外围平行均匀布置。井的结构:止水帷幕内侧降水井深度18m,井径60cm,布置示意图如下:

                                        管井降水示意图

⑵、排水管铺设与系统连接

降水井施工完成后,安装好抽水泵,每个井抽出的水就近排出。

当水泵控制和排水管铺设完毕后,对所有降水井分别进行试抽水,检查水泵运转是否正常,深井出水是否通畅,排水管是否漏水、堵塞,在无漏水、堵塞等现象后,采能正常投入使用。

井点应保证连续抽水,并应准备双电源。

⑶、降水井运转管理

降水井运行后要连续工作,应准备双电源以确保连续抽水,控制柜要有专人值班看护,现场要配备管井和水泵维护人员。

⑷、井点监测

在降水井运转后,要进行流量观测和水位观测,若发现流量过大而水位降低过慢甚至降不下去时,可考虑改用流量较大的水泵,若流量小而水位降低较快时可改用小型水泵,在日常抽水进行的过程中每天要定时做好观测记录,对流量、地下水位、周边地面沉降均要分别按规定做好观测记录,一旦发现异常,可采用相对应的措施解决问题。降水井从开始抽水,沉井下沉过程中,降水井必须保证沉井周边地下水位低于沉井下沉开挖面12m,采用管井降水的方法抽除地下水,降低地下水位.

4.6.2沉井除土下沉

⑴、人工开挖施工

人工开挖,拆除刃脚支设是沉井下工作的开始,也是沉井下沉施工过程中的重要工序之一。该工作的突击性较强,要求在短时间内全部抽完,拆除刃脚支设时,沉井井壁与刃脚以及地基土内应力发生相应变化,会直接影响到沉井结构的受力情况。所以拆除时,一定要对称均匀,分段进行,使沉井下沉量达到最小,同时不能产生不均匀下沉或下沉量过大,这样会带来沉井产生较大的倾斜,给以后的纠偏带来一定的困难。

⑵人工开挖的施工工艺

拆除刃脚支设采取分区进行,先四周,后中间的方式进行。拆除刃脚支设后立即用沙土回填,根据施工经验,抽至2/3刃脚支设的时候,沉井下沉均匀,下沉量不大,回填时间充分,当继续抽取支设时,下沉量逐步加大下沉很快以至来不及回填,所以在抽取支设时前期抽垫时留出的充分的时间和力量,充分回填夯实,最后阶段全力以赴,尽快将剩余支设全部抽出,使沉井刃脚平稳落入土层。

3)小挖机和吊机配合挖土

下沉时,挖土工具采用小挖机和吊机结合的方法吊出井外。必须保证沉井下沉时第一节沉井的混凝土强度达到100%,其余井壁混凝土强度达到75%,沉井测量观测点建立并完成原始测量后进行下沉施工。始发井挖除土方约3100m3,接收井挖除土方约3200m3,所有挖除土方通过自卸车运至弃土区。

首先人工凿除刃脚下的混凝土垫层及胎模,然后开始机械挖土作业。沉井挖土应均匀对称、中间稍低于四周,沉井内的挖土高差控制在0.5m以内,禁止深锅底挖土,防止沉井突沉造成沉井倾斜的危险。

为提高井底土体的稳定性,应确保刃脚下土体不发生整体滑动破坏,在层层开挖过程中,采取先校正倾斜,然后分层开挖,做到各施工区同步开挖,使井体能均匀下沉。井壁外的灌砂必须均匀密实,使沉井下沉时四周摩阻力相近,均匀下沉。沉井下沉时,应防止倾斜,发现问题及时纠偏,不准大量挖深,造成突沉。

沉井挖土24小时连续作业,中途不停顿,确保沉井连续、安全地下沉就位。当刃脚距离设计标高在2.0m时,沉井下沉速度应逐渐放缓,挖土高差控制在20cm内,并加强观测频率。当沉井接近标高时,应预先做好止沉措施。止沉措施可采用在刃脚四周间隔挖出设计标高的槽,填入方木,并应注意抛高系数,禁止超沉和超挖。沉井在下沉过程中,必须随时测定沉井标高,确保均匀下沉,并做好沉井下沉记录。

4)沉井下沉设备配置:

沉井除土施工中井内布设2台小挖机(0.3m3),备用1台,共3台。外侧布置2辆吊车(20t),1m3挖掘机1台,自卸车3

降排水下沉主要机械设备表

名称

规格

单位

数量

用途

备注

挖掘机

0.3m3

2

挖土

1台备用

吊车

20t

2

吊土

挖掘机

1m3

1

自卸车

3

5)沉井施工中,为防突沉,引起沉井较大的偏差,以减少井外土体扰动坍塌等情况,可在四周刃脚旁保留0.8m1.5m的土堤不进行挖土。待锅底开挖完毕后,再逐步均匀地冲挖土堤。

当沉井下沉离终沉尚有2m左右时,锅底逐渐减小,以能出土为标准,并降慢下沉速度。

⑸、沉井除土效率分析

根据该工程的土质情况,沉井内布设20.3m3挖掘机,每台每天可除土300m3,合计2×300m3600m3左右,

沉井断面积为15*17.2258㎡。

每天沉井的下沉量:600/2582.32m

实际考虑其他因素的影响,每天沉井下沉量可达到1-1.5m,则沉井下沉11.5m需要12天。

    4.7铺设素混凝土封底

沉井沉至设计标高后,应检验基底的地质情况是否与设计相符,排水下沉时,可直接检验、处理。

(1)、基底面应尽量整平,以提高水下混凝土的灌注质量,保证封底混凝土在刃脚和内隔墙下满足设计要求的最小厚度;

(2)、清除浮泥,防止封底混凝土和基底间掺入有害夹层;基底为岩层时,岩面残留物(风化岩碎块、卵石、砂)应清除干净,清理后有效面积(即沉井底面积扣除在刃脚下一定宽度不可能完全清除干净的面积)不得小于设计要求。

(3)、井壁隔墙及刃脚与封底混凝土接触处的泥污应予清除。

⑷、基坑开挖并处理完毕,应首先由施工人员自检并报请检验,确认合格后填写地基检验表,经检验签证的地基检验表由施工单位保存作为竣工交验资料。

基底检验内容:

a.检查基底平面位置、尺寸大小、基底标高;

b.检查基底地质情况和承载力是否与设计资料相符;

c.检查基底处理和排水情况是否符合本规范要求;

d.检查施工日志及有关试验资料等。

基底平面位置和标高允许偏差规定如下:

a.平面周线位置:+20cm

b.基底标高:土质±5cm

石质±5cm-20cm

地基土质复杂(如溶洞、断层、软弱夹层、易溶岩等)情况及结构对地基无特殊要求,一般采用直观或触探方法,必要时可进行土质试验;

地基土质复杂、结构对地基有特殊要求的地基检验,一般采用触探和钻探(钻深至少4m)取样作土工试验,或按设计的特殊要求进行荷载试验。

基底检验合格后,应及时封底。对于排水下沉的沉井,在清基时,如渗水量上升速度小于或等于6mm/min,可按普通混凝土浇筑方法进行封底;若渗水量大于上述规定时,宜采用水下混凝土进行封底。

沉井下沉至设计标高,经过连续观测在8小时内累计下沉量不大于10毫米,或沉降率在允许范围内时,沉井下沉已经稳定时,即可进行沉井封底。

沉井封底采用商品砼泵送入仓,现中间,后四周,对称进行封底,以免沉井发生偏移。在沉井封底时,如渗水量上升速度过大,在已封的仓内砼表面铺设土工布并于压载防护,向仓内注水压载。

在铺筑素混凝土封底时,应确保井底内无积水、无流沙、无翻浆等现象。混凝土垫层应做到平整,无坑塘,必要时应用水平仪抄平,保证混凝土垫层的水平,在铺筑素混凝土垫层后,应确保表面平整,无地下水上冒现象。

在封底砼达到设计要求强度后,凿除封底砼浮浆,并用清水冲洗干净,然后绑扎底板钢筋,绑扎完成经过验筋合格后及时浇注底板砼。底板混凝土浇筑前,落实混凝土的供应条件,保证底板连续浇筑。同时为了保证混凝土底板与沉井内壁的密封,清除沉井接口表面的垃圾并凿毛。

     五、沉井下沉过程中的纠偏

  5.1沉井下沉产生偏差的原因

沉井的偏差包括倾斜和位移两种。产生偏差的原因很多,主要有沉井在下沉施工时,由于不均匀或出现个别障碍物,以及施工时要求不严。如:砂垫层铺设不均匀;刃脚下混凝土垫层不对称,以及刃脚附近砂石回填不密实及灌筑混凝土时下料不对称等,沉井下沉前就出现了倾斜;在下沉挖土时,由于挖土不对称均匀,未从中间开始先挖,以及掏空过多,引起沉井突然下沉;井外弃土太高、太近造成偏压等原因使沉井产生倾斜。沉井的位移主要因为沉井四周土压不均匀及沉井倾斜有关,当沉井倾斜纠偏时,容易使沉井位移。

  5.2防止沉井下沉产生偏差的方法

在施工过程中一开始就应从思想上高度重视,严格按操作规程和施工规范施工,把好各个关口,贯彻以“预防为主,纠偏为辅”的原则,防止方法如下:

1)沉井下沉过程中,实际上总是在摇摆中下沉的,而并非绝对平稳均匀,所谓防止偏差就是使其控制在最小范围之内,做到基本均匀。因此在下沉中要根据测量资料随偏随纠。

2)为了随时检查沉井是否铅直下沉,我方计划在沉井井壁外侧隔一段距离设立水管在外围接通,根据竖管中的水位来观察沉井的水平偏差;以便挖土人员及时掌握纠正。

3)在井内除土,应先从中间开始,均匀对称地、逐步地向四周刃脚处分层取土,以便沉井均匀缓慢下沉,防止倾斜。特别是在沉井下沉初期,土层对沉井的平衡稳定作用差,容易产生倾斜,尤应注意。

4)近刃脚处,任何情况下,在下沉过程中,除土泥面不宜低于刃脚;中间井孔的除土泥面,应根据土质情况和沉井大小,入土深度不宜低于刃脚踏面12m

5)下沉过程中,应常测量井内除土的泥面标高、下沉量、倾斜和位移的变化情况。

6)下沉中要随时掌握土层变化的情况,分析和检验土壤阻力与沉井重量的关系,选定适当的除土下沉方法,控制其除土部位和除土数量,使沉井能均匀平稳地下沉。

7)施工过程中应随时监测和控制井内水位,井底开挖的几何尺寸、下沉量和速度以稳定井底、防止突沉、控制终沉。

8)下沉过程中,应随时注意观测沉井周围地面沉降和开裂情况,以便采取措施,确保沉井附近的施工设施及其他建()筑物的安全。

9)沉井下沉挖出的土方,应尽量及时运走,如确实来不及外运时,应远离沉井基坑边,四周均匀堆放,并防止将弃土堆放在井壁的一侧,以免产生偏土压力而使沉井偏斜。

10)沉井的下沉,当快接近下沉预定标高时,应注意调平沉井,准备以后接高。此时,沉井下沉应特别注意除土部位和深度,防止沉井下沉量过快、过大而产生较大的偏斜,增加接高工作的困难。

11)沉井下沉至设计标高以上约2.02.5m时,应严格控制井内的除土量、下沉速率,同时还应调平沉井,防止因除土量过大和除土不均匀,使沉井产生突沉,而引起较大的偏斜,增加了准确下沉至设计标高的困难。如不产生突沉,即使有少量偏斜,因为尚有2.02.5m的下沉高度,可以进行纠偏处理,而不致于使沉井超沉。

12)沉井下沉初期,重心较高。井壁四周并无约束,下沉时必须特别注意,不使沉井倾斜。这就要求沉井的重心不宜过高,沉井刃脚下的基础垫层必须均匀密实。挖土时,宜采用抓土斗对称挖土。根据以往施工经验,沉井产生倾斜一般都发生在入土不深(<8m)时,当入土较深后,只要控制好沉井不产生突然下沉过多,一般下沉不易产生倾斜。

 5.3沉井下沉纠偏方法

到目前为止,沉井基础的施工工艺已相对成熟,然而由于施工场地地质工程条件和环境因素影响的局限性,沉井基础在施工中风险仍相对较大。

⑴、井下沉过快                                

沉井下沉过快主要是在下沉过程中遇到流砂、软弱土层或因井外部砂土液化而引起的下沉过快或下沉失控,处理方法:

a可用木垛在定位垫架处给于支撑,并重新调整挖土位置,在刃脚下不挖或部分不挖;

b、将排水法下沉暂改为不排水下沉,增加浮力;

c、将沉井壁外土夯实,加大摩擦力,如沉井外部的土液化,虚坑时可填碎石处理;

⑵沉井翻砂

沉井翻砂突沉即井外砂土涌入井内的现象,主要是由于井内锅底开挖过深,井外地下水动水压力把松散土涌入井内,涌砂不仅施工带来困难,甚至可能发生难以挽回的重大安全、质量事故。因此在施工中应避免发生。避免措施:

a、避免下沉吸泥过程中形成刃脚下翻砂通道。刃脚尽量埋入土中。

b、利用深井进行井外降水,形成反压力,防止翻砂。                

c、下沉过程中,随时保证井内水压大于外部水土压力,下沉时适时补充井内水头,保持井内水头高出井外地下水位2m以上,以防止翻砂。

⑶、沉井下沉过缓或停止下沉

通常沉井下沉过缓或停止下沉的主要原因是遇到厚薄不等的黄砂胶结层,质地较硬冲挖困难,另外刃脚被孤石卡住,或者挖土不足,造成刃脚反力过大及挖土不符合要求等,也会造成下沉过缓或停止下沉。应对措施:

a、以人力用铁钎打入土中向上撬动取出,或用铁镐、锄开挖,必要时打炮孔爆破或碎块。

b、遇较小孤石,可将四周土掏空取出,大块石可用风动工具松动或爆破方法破碎成小块取出,炮孔距刃脚斜面平行,并设钢板防护,不得裸露爆破。

⑷、沉井施工偏差

造成沉井施工偏差的主要原因有:沉井一侧的土被水流冲空;沉井刃脚下的土软硬不均;刃脚外的土向一侧有较多的坍塌;没有对称均匀地抽取垫块;未及时对刃脚回填夯实;没有对称均匀挖土或吸泥;刃脚下挖土过多,沉井突然下沉;刃脚一角或一侧被障碍物卡住;没有及时发现;井外弃土过近且堆土位置不均匀引起偏压。处理方法:

a、重点控制在初期精度,使沉井形成正确的下沉导向;

b、除土施工采用同步对称,采用先中间后四周的顺序;

c、加强沉井下沉过程的检测和资料分析,尽早发现及时纠正;

d、在刃脚高的一侧加强取土,低的一侧少挖或不挖土,待正位后再均匀取土;

e、刃脚较低的一侧适量回填砂石延缓下沉速度;

f、使沉井向偏移的相反方向倾斜,当几次倾斜纠正后,即可恢复到正确的位置或使沉井向偏位的一方倾斜,然后沿倾斜方向下沉,直至刃脚处中心线与设计中线位置吻合或接近时,再将倾斜纠正。

     六、质量保证控制措施

  6.1对施工技术交底的保证措施

为使施工管理和作业人员熟悉和了解工程的施工内容、方法、工艺、进度、技术及质量标准要求等各项内容,开工前,项目工程技术部根据施工设计图和相关设计文件,就上述各项内容和标准要求向施工管理人员进行施工技术交底,并由施工管理人员再向作业层进行层层技术交底。

工程的施工技术交底,以书面交底为主,包括结构图、表和文字说明。交底资料必须详尽、直观、并符合规范和工艺标准要求,经复核确认无误后,签字确认,技术交底资料应妥善保存备查。

 6.2对测量放线的技术保证措施

 1对工程现场控制桩和相应的桩点资料,由技术管理部负责接收、使用和保存。接桩时双方要逐一现场查看、清点,并记录好桩点的现状和问题及处理意见,双方签认。接桩后,要对接收桩位进行复测,复测精度须符合有关规定。如误差超过允许值范围,要及时上报建设单位,提请落实处理。

2施工测放前,应将测量方案设计与意见报告报监理审批。内容包括施测方法和计算方法,操作程序、测放仪器的配置和专业测放人员的配备等资料。

3施工过程中,项目部工程测量技术人员负责施工放样、定位等测量和复核工作。工程竣工后,按设计图纸进行中线、高程贯通测量,确保中线、标高达到设计要求。

4测量原始记录及图表和计算资料,必须真实完整不得涂改,并妥善保管。测量仪器按计量部门规定,定期进行计量检定,并作好日常保养工作,保证状态良好。

5认真执行测量复核制度,外业测量资料必须经过第二人复核,内业测量成果必须二人独立计算,相互校对,确保测量成果的准确性。

6加强对现场测量控制点的保护,防止移动和破坏。

6.3对施工技术文件、资料管理的保证措施

1工程现场的技术文件和资料,由工程技术部负责填写、整理、并分类保管,制定和落实好管理工作的制度及责任。

2施工过程中,及时收集、记录和整理各项施工资料,工程完工时,竣工文件也要相应编写完成。

6.4对施工技术管理人员的保证

为保证本工程的施工质量和工期、安全指标均达到总体预期目标,在本项目主要施工技术管理人员的配置上,我司均选派了曾参加过多次市政给排水工程施工建设,有着丰富施工和技术管理经验的人员。

6.5对基层施工作业人员的保证

对于基层施工作业人员,我们将调配足够的熟练技术工人,按工种组成各专业班组,并挑选具有丰富施工经验及一定管理组织才能的人员担任工班长,以保证施工质量。

   七、安全预案和保证措施

7.1安全生产紧急预案

根据施工图纸设计与施工组织方案相结合,降排水施工下沉安全生产紧急预案如下:

⑴、各施工作业队应对可能发生安全事故的工作进行事故预测,并加强该环节的安全教育和操作规程控制管理;

⑵、施工作业点一旦发现险情,首先应采取一切有效方式控制险情的发展,并及时向项目部报告;

⑶、项目部组织抢险小组,做好人员伤情、机械受损、施工结构损坏的调查抢救工作。

⑷、派出工地医护人员进行安全救护,并随时准备将伤病较重的人员送往就近医院进行。

⑸、组织事故处理小组对事故发生的原因,处理方法及善后工作进行协调。

为保证上述施工的安全生产,避免或减少事故的发生,严格按照“中华人民共和国安全生产法”、国务院“建设工程安全生产管理条例”等多项规定进行施工,结合工程施工难点,进行详细的施工安全技术分析。

7.2安全生产保障措施

⑴、加强施工操作人员及现场管理人员对安全守则的学习;

⑵、对安全设施,设备、防护用品进行严格的检查验收,必须按照安全防护的技术措施方案执行;

⑶、所有进入施工现场的人员必须戴好安全帽,沉井内工作人员要穿救生衣,并按规定配戴安全带等安全工具;

⑷、施工现场内的管理人员、特种作业人员必须持证上岗。对各施工作业组还应培训、考核、持相关证件上岗。大型专用设备应按安全作业规程严格进行,上岗前必须经过专门培训,考核合格后方可上岗。

⑸、施工作业塔的扶手、工作台、脚手架、护身栏、安全网等,必须牢固可靠,并经验收合格后方可使用,不准攀登模板、脚手架、或绳索上下。

⑹、地面电器线路安装前必须对所使用的电箱、电线进行绝缘测试,电箱电线的负荷必须与设备匹配。

⑺、从开始施工起,每天由专人观测降水井内水位,并做好记录,每次降水深度不能过大,控制在开挖面以下1m左右,对于水位变化异常的情况,应及时研究,采取措施处理。

7.3质量保证措施

沉井排水下沉的关键在于降水深度和控制沉井均匀下沉,尤其是初始下沉阶段至关重要,他是沉井下沉的奠基阶段,既能检验沉井下沉方案的可行性,又能检验沉井开始下沉时结构的受力可靠性。为了保证沉井均匀下沉我们采取了一系列控制措施:

⑴、出土顺序由内向外,先取中间,再取四周,最后形成全刃脚支撑的大锅底;

⑵、严格控制刃脚处土体,为保证沉井受力均匀,内部应力没有集中现象,我们严格遵守设计的支撑方案,再全刃脚支撑不能满足下沉要求时,需在刃脚取土一定做到均匀、对称,层层剥离,循环渐进。

⑶、通过测量手段对下沉量、四角高差、偏位进行测量,及时了解下沉速度,并进行纠偏,确保沉井在初始阶段形成良好的下沉轨道。

⑷、通过测量手段,获得基地反力以及沉井砼的应力应变数据,在进行分析后及时消除应力集中现象,确保沉井结构受力均匀。

⑸、控制降水深度,保证井外水位低于井内施工位置12m,严防涌砂现象发生。

此外施工中我们将建立由项目部技术骨干组成的攻关小组,各施工作业队以其主要骨干为第一责任人,从施工方案的制定,机器具及原材料的准备、运输,现场施工操作、编录、资料整理等每道工序严格把关,要求所有上岗人员熟悉相关的规范、规程、以及设计提出的技术要求和具体施工方案,项目经理部各部门随时进行全程质量监控,严格工序质量检查,发现质量隐患及时消除,确保整个工程质量。

     八、环境保护措施及文明施工保证措施

  8.1施工环境保护具体措施

1、水域环境污染防治措施

⑴、施工时,加强施工管理工作,严格检查各种施工机械,防止油料发生泄漏污染水体。

⑵、施工中泥浆必须沉淀净化循环利用,不得随意排放,泥浆池周边必须看护,防止泄漏。

2、大气污染防止措施

⑴、弃土、砂石料等散装物料的运输和临时存放,应采取防风遮挡措施,以减少起尘量,

⑵、未进行砼硬化的施工便道在无雨日、大风条件下极易起尘,可适当洒水降尘,缩短扬尘污染的时段和污染范围,最大限度的减少起尘量。同时对施工便道进行定期养护、清扫,保证其良好的路况。

⑶、选用符合国家卫生防护标准的施工机械设备和运输工具,确保其废气排放符合国家有关标准。

⑷、施工过程中受环境空气污染的最为严重的是施工人员,项目部着重对施工人员采取防护和劳动保护措施,如缩短工作时间和发放防尘口罩等。

噪声污染防止措施

⑴、选用符合环保标准的施工机械。

⑵、在施工过程中,操作人员要加强各种施工机械的维修保养,尽可能降低施工机械噪声的排放。

⑶、施工现场场界噪音白天﹤75分贝,夜间施工现场场界噪音﹤55分贝。

 8.2文明施工

文明施工是工程施工形象的窗口,是施工现场综合管理水平体现,贯穿于项目施工管理的始终,文明施工不仅涉及项目每位员工的生产、生活及工作环境,更主要的是地处城市对周边环境及居民的影响更大,我司在文明施工方面一直注重管理,强调落实,并形成了规范化、制度化,依据公司文明施工管理办法,项目部制定文明施工的保障体系,责任到人,层层把关。

⑴、执行公司现场管理规定。

⑵、进行教育和动员工作,要求所有人员尊重并遵守当地民俗习惯,维护当地群众的正常生产和生活秩序,搞好群众关系,以保证工程施工的正常进行。

⑶、设置正规醒目的标牌,书写本合同段工程有关内容,如合同段名称,项目经理部名称,并简介工程范围,工程量等,各结构物施工点均设置标牌,注明结构物形式、施工工期、施工负责人、质量责任人等。

⑷、制定严格的文明施工管理制度、条例、办法等,主要条款书写在标牌上挂在工区内醒目位置,时刻提醒职工认真遵守。

⑸、驻地和现场施工人员一律配证上岗,兼职维护工区内施工秩序,防止无关人员进入工区,各作业区、办公室、仓库、工作室等悬挂统一标牌,以示标识,

⑹、做好施工现场各类机械设备和车辆分类划区安放停置工作,各种施工材料、构件均挂牌分类整齐堆放,按照不同材料相应要求确定其堆放方式及存放件。

⑺、沿线便道贯通,主要便道表面做到整洁、平顺。

文章地址:/Show/?Cid=460

页面版权所有 爱体育中国体育官方网站 Copyright © 2017 All Right Reserved.

服务电话:0512-57996299     总部地址:江苏省昆山市玉山镇宝益路5号    

邮箱:js_kssj@163.com    网址:/