联系我们Contact
服务热线:0512-57996299

邮箱:js_kssj@163.com

网址:/

地址:江苏省昆山市玉山镇宝益路5号

您当前的位置: 首 页>新闻中心>技术交流

顶管施工技术

作者:  来源:本站  发表时间:2018-06-06 14:35:47   浏览:
 

第一章   工程概况

      1.1、工程概况

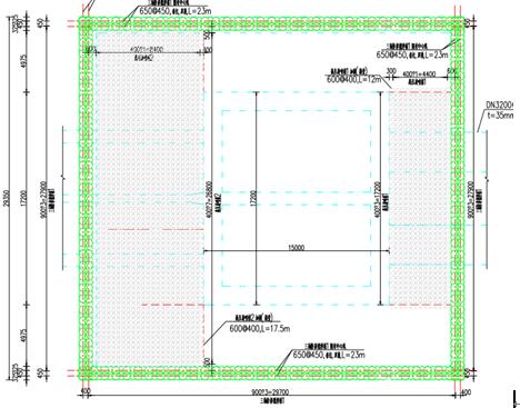
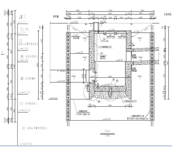
木沉港泵闸及水立交工程二标段为木沉港泵闸及水立交2标工程为娄江水立交枢纽项目,水立交采用2D3200钢管穿越娄江和312国道,顶管单根长度252米,双管施工,管道间距为:4.4米。满足大于管外径的要求。管材采用DN3200钢管,钢管壁厚35mm。采用焊接施工,顶管工作井和接收井均采用沉井施工。工作井外径为17.2*15m,接收井外径为:17.2*11m,井高度分别为19米和18米。顶管高程位置为-8.8~-12m,管道中心高程-10.4m。本工程管道穿越娄江河,河底最深处淤泥高程为-2.65(实际测量),本工程管道覆土厚度为6.15米,根据顶管技术操作规程,最小覆土厚度不小于1.5倍管外径即4.91米,本工程覆土厚度满足施工要求。穿越娄江距离约75米。穿越312国道约60米。

                                   


                                 顶管工程平面位置图

    具体位置如下:

 

      本工程沉井主要作用是作为管道的工作井、接收井,具体尺寸及数量如下表;                                          

   序号

 

   尺寸(m

 

  深度(米)

环境

1

顶管工作井

17.2×15

工作井

19

2

顶管接收井

17.2*11

接收井

18

  312国道绿化带

     1.2、顶管工程土层情况及地质分布表

   沉井下沉切入土层情况及地质分布表数据显示,工作井如下图:


   接收井地质情况:

 

 

    沉井根据地质报告,大部分底板均坐落在5层灰色粉质粘土层,穿越微承压水4-14-2层,初见水位标高为1.16-2.44m。沉井采用三轴搅拌桩帷幕止水。(基坑方案已论证)

    顶管施工主要在4-2层灰色粉细砂层进行施工。

    1.3、工程地质、水文情况

    1 、工程地质情况

     工程场区根据岩土工程勘察报告,在勘探深度内(沉井深度范围)的岩土层分为5个主层,但分布不均匀,自上而下分布如下:

 

     第二章  施工前准备  

        2.1、施工准备阶段

熟悉结构设计图和建设单位提供的相应有关资料,了解地质、地貌等情况,掌握结构施工区域的地下管线分布,以确保顶管施工的安全。利用附近的固定建筑物设置控制点。以上施工放样完毕后须经技术部门复核后方可开工。

        2.2、材料进场准备

顶管工程中所用主要材料包括:钢管等。工程所用材料根据工程施工进度分批进场,保证施工进度,考虑厂家生产供应能力、工程进度、气候条件等因素,结合施工高峰期需用量,保证有充足的储备。

        2.3、机械设备进场准备

   施工机械设备主要有顶管机、挖掘机、自卸汽车、起重机、发电机等。 

                    机 械 设 备 表            1

    

 序号

机械设备名称

数量

序号

机械设备名称

数量

1

汽车吊

1

8

250吨液压油顶

10

2

电焊机

3

9

膨润土泥浆搅拌机

1

3

自卸汽车

2

10

电缆线

若干

4

水泵

1

11

5

挖掘机

1

12

6

泥浆泵

2

13

7

泥水平衡顶管机

1

14

第三章 顶管施工

         3.1、顶管工程量统计表

本工程共2DN3200(内径)顶管,顶管采用钢管施工,单根长252(含穿墙段1.5m*2,井间管段长249m,管道外径3270mm,壁厚35mm,钢管管材,焊接连接。采用NPD-3200型泥水平衡顶管机施工。

        3.2、泥水平衡式顶管简介

  采用NPD-3200型泥水平衡顶管机施工。构造图如下:

 

微型掘进机被主顶油缸向前推进,掘进机头进入止水圈,穿过土层到达接收井,电动机提供能量,转动切削刀盘,通过切削刀盘进入土层。挖掘的土质,石块等在转动的切削刀盘内被粉碎,然后进入泥水舱,在那里与泥浆混合,最后通过泥浆系统的排泥管由排泥泵输送至地面上。在挖掘过程中,采用复杂的土压平衡装置来维持水土平衡,以至始终处于主动与被动土压之间,达到消除地面的沉降和隆起的效果。掘进机完全进入土层以后,电缆、泥浆管被拆除,吊下第一节顶进管,它被推到掘进机的尾套处,与掘进头连接管顶进以后,挖掘终止、液压慢慢收回,另一节管道又吊入井内,套在第一节管道后方,连接在一起,重新顶进,这个过程不断重复,直到所有管道被顶入土层完毕,完成一条永久性的地下管道。掘进机在掘进过程中,采用了激光导向控制系统。位于工作后方的激光经纬仪发出激光束,调整好所需的标高及方向位置后,对准掘进机内的定位光靶上,激光靶的影像被捕捉到机内摄像机的影像内,并输送到挖掘系统的电脑显示屏内。操作者可以根据需要开启位于掘进机内置式油缸进行伸缩,为达到纠偏的目的,调整切削部分头部上下左右高度。在整个掘进过程中,甚至可以获得控制整个管道水平、垂直向30cm内的偏离精度。

当工作井完成以后,经调试完毕的液压系统,顶管掘进机便通过运输至工地,并安装就位至导轨上,微型掘进设备还包括,操纵室和遥控台、液压动力站、后方主顶、泥水循环装置,激光定位装置,减摩剂搅拌注入装置,泥水处理装置;其他辅助装置包括起重机,发电机、卡车、电焊机等。随后,微型掘进装置上。   

3.3、泥水平衡顶管的作业优点

   (1)、适用的土质范围比较广,如在地下水压力很高,以及变化范围很大的条件下,)它都适用。

   (2)、可有效地保持挖掘面的稳定,对所顶管子周围的土体扰动比较小,因而由顶管引起的地面沉降较小。

   (3)、与其他类型的顶管比较,泥水顶管施工时的总推力比较小,尤其在粘土层这种表现得更为突出,所以特别适用于长距 离顶管。

   (4)、工作坑内的作业环境较好,作业比较安全,由于它采用泥水管道,输送弃土,不存在吊土,搬运等危险的作业。

   (5)、泥水输送弃土为连续作业,因此进度比较快。

   主要设备参数

  本工程使用的主要设备扬州广鑫制造的NPD-3200型泥水平衡偏压破碎型顶管机。主要参数如下:1、尺寸:全长(mm):5000;重量(T):522、切削刀盘:电机功率(KW):15*8;转矩(KN.m):150;转速(rpm/min)23、纠偏系统:油缸数量(个):2;油缸推力(T):15×8;纠偏角度:上下1.7°, 左右1.2°;电机功率:0.75;4、泥水系统 :排泥泵(KW):22;送泥泵(KW):15;送排泥管:4”;5、顶进速度mm/min0~120  6、机头总功率:160本工程顶管机头采用260吨汽车吊进行吊装。

         3.4、顶管施工工艺流程图 

  

        3.5、顶力计算、最大顶距确定和准备工作

本工程顶管单元长度根据设计图纸的井室位置、地面运输和开挖工作坑的条件、顶管需要的顶力、后背与管口可能承受的顶力等因素确定单元长度。顶力计算时分不同管径取一个最大管径和最大单元长度进行计算。本工程顶管采用DN3200钢管施工,管节长8.8米,采用焊接。

    1)、顶力的计算

    最大推力计算,采用经验公式,按最大顶距252米计算:

    F=F1+F2    式中:F—总推力;   F1—端阻力;   F2—侧壁摩阻力;F1=п/4×D2×P

    式中D—管外径;P—控制土压力;P=Ko·γ·Ho   式中:Ko—静止土压力系数,一般取0.55

     Ho—地面至掘进机中心的高度,取值14m             γ—土的重量,取1.9t/m3

     P= Ko·γ·Ho =0.55*1.9*14=14.63t/m2

     F1=3.14/4*3.27*3.27*14.63=122.8t      F2=πD·f·L

    式中:f—管外表面综合磨擦阻力,根据地质勘察报告,位于砂土层,取值0.30T/m2(触变泥浆采用优质膨润土)

         D—管外径取3.27m          L—顶距252m

     F2=3.14*3.27*0.3*252=776.2t     F=F1+F2 =122.8+776.2=899t

     工作井最大承载力为1200T,能满足顶管施工要求,不需设置中继间。

   (2)、地面准备工作

     ①在顶管顶进施工前,按要求进行施工用电,用水,通道,排水及照明等设备的安装。施工用电采用临时变压器满足顶进设备的功率(并备有150KW的发电机组一台)。水需从外拖运,要修进场简易便车道,保证施工管材料、设备及机具进场。还需铺毛渣石的场平。现场设备摆放空间至少需长45米,宽55米的平整封闭场平区域。

     ②施工材料,设备及机具必须备齐,以满足本工程的施工要求。管节等准备要有足够的余量(3040m)

     ③井上,井下建立测量控制网,并经复核报验监理认可。

   (3)、井下准备工作及井内布置

     工作井井内布置主要是后靠背、导轨、主顶油缸、油泵动力站、钢制扶梯等。顶管基座为钢结构预制构件,顶管基座位置按管道设计轴线准确进行放样,安装时按照测量放样的基线,吊入井下就位安装固定。基座上的导轨按照顶管设计轴线并按实测洞门中心居中放置,并设置支撑加固,保证基座稳定不变形。

   (4)、技术交底,岗位培训

    在顶管施工前,对参加施工的全体人员分阶段进行详细的技术交底,对各技术工种进行岗位培训,经考核合格后,才能上岗。

   3.6、后座墙的选择

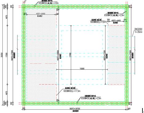
本工程后背墙按照施工图纸设计采用钢筋混凝土后背墙,为保证砼后背墙受力均匀,避免局部受压破坏,在施工时在钢筋砼后背墙前增设20cm厚钢板(5*5m)作为支垫,以分散千斤顶的压力。同时顶管工作井外侧采用三轴搅拌桩加固。

                   

后背墙加固区域图

            3.6.1、后背墙的刚度要求

顶管时要求后后座墙具有充分的刚度,以避免往复回弹,消耗能量。要保证受最大顶力时不变形,或只有少量残余变形,后座墙应尽量采用弹性小的材料。如果后座墙弹性过大,顶进的后从力先压缩后座墙,直到后座墙被压紧而不能再压缩时顶力才向前发挥作用使管段前进,千斤顶卸荷,后从力解除后,后座墙虽然有残余变形但不大,甚至可以恢复到未受荷载的状态,可是下一次顶进时,仍要先压缩后座墙,因而每次顶进都要浪费一段千斤顶行程于压缩后座墙。用短行程千斤顶,行程 一般为200mm,而后座墙压缩量为2030mm,这样就可使千斤顶行程在顶管前进时的利用率只有70%80%,每顶进2m长的管节,需1214个行程。若再考虑到传力工具的压缩,需要的行程数还要增加。所以,要提高顶进效率,除采用长行程的千斤顶外,还应设法增加后座墙的刚度。

          3.6.2、后座墙的形式和类别

后座墙形式虽然多种多样,但就其使用条件来讲,基本上有以下三种:

    ①.覆土较薄或穿过高填方路基的顶管,无土抗力可利用时修建的人工后座墙;

    ②.覆土较厚时可以充分利用土抗力的天然后座墙;

    ③.在混凝土或钢筋混凝土竖井内建筑的现浇钢筋混凝土后座墙。

    GB5028697规范中对装配式后座墙作出了如下规定:

    ①.装配式后座墙宜采用方木、型钢或钢板等组装,组装后的后座墙应有足够的强度和刚度;

    ②.后座墙土体壁面应平整,并与管道顶进方向垂直;

    ③.装配式后座墙的底端宜在工作坑底以下(不宜小于50cm);

    ④.后座墙土体壁面应与后座墙贴紧,有间隔时应采用砂石料填塞密实;

    ⑤.组装后座墙的构件在同层内的规格应一致,各层之间的接触应紧贴,并层层固定。

    顶管工作坑及装配式后座墙的墙面应与管道轴线垂直,其施工允许偏差应符合表9-3中的规定。

工作坑及装配式后座墙的施工允许偏差(mm     2

  

     注:H——装配式后座墙的高度(mm);L——装配式后座墙的长度(mm)。

   3.7、泥水系统、水压控制、注浆量的计算

   (1)、泥水系统

泥浆系统有二个作用:送走被挖掘机的渣土和平衡地下水。泥浆系统是由密封的管道组成,通过机头循环,形成泥浆混合物,由排泥管送走,最后沉淀在地面上的泥浆池内,泥浆通过众多的排泥泵被排出。再由进水泵进水送入机头,排泥由变速的排泥泵进行控制。机坑旁通装置可控制进排泥浆的速度、方向,以防止泥渣堵塞管道,淤积现场。当挖粘土时,可能使普通粘土,有一定的粘合度,可以直接将泥浆排入泥浆池内,但是当挖沙土时,泥浆中必须添加一定的粘合剂(诸如膨润土等)以增加泥浆粘度,以达到排渣的最终目的。夹带泥砂的泥浆,可通过振动筛、循环沉淀器、干燥器等,处理分离渣质,泥浆被再用,渣质被积累后处理。处理渣土用翻斗车,泥浆用罐车运出场区,堆置于郊外,处理时注意不得污染路面等环境。

进排泥水系统起着第二个作用:在有地下水存在的地方,掘进机表面的压力可以降低到小于水中的压力。这样避免了抽地下水的需要。进排泥水系统中的压力感应器可测出地下水的压力。机内泥水循环系统,电磁阀,旁通装置及载水阀可以起到调节水压的作用。机内电磁阀和旁通系统,可以阻止水压的变化,保持水压,在加管道时,不至于减小机头的水压,保证内部压力平衡

    (2)、注浆量的计算

    本工程每1米注浆量计算如下:

    V=πDwtL3.14×3.27×0.015×10.153m3

    1)、按照地质条件。一般压浆量为计算的150%~200%,本工程在粉质粘土顶进,按照160%进行注浆量控制。

    2)、为防止路面沉陷和地上、地下构筑物不受扰动,顶管结束后,应及时对管体四周的缝隙充填水泥浆,使其密实坚固,填充水泥所用设备与触变泥浆设备相同。逐孔注浆,水泥浆液需搅拌均匀,无结块,无杂物,注浆结束后,要及时清理注浆设备,以防堵塞。

    3)、注浆压力根据管道深度H和土的天然重度γ而定,经验为23γH,本工程注浆压力为0.20.3MPa

    4)、压浆填充材料:在管顶间隙较小管段,采用管内注浆,压浆材料为水泥粉煤灰浆,配比为,水泥:粉煤灰=13;在管顶间隙较大管段,采用管内注浆和地面注浆相结合,压浆材料为水泥粉煤灰砂浆,配比为,水泥:粉煤灰:细砂=114

    5)、管内注浆布孔方式:沿管线纵向每3m设一处压浆孔。布孔方式宜采用左上方、右上方、左上方的顺序。地面注浆布孔方式:沿管道上方每46m打孔至管顶空腔。

 

    6)、注浆顺序:每段注浆从第一孔开始,直注至下一孔出浆,依次注完。每段注浆后,静止68小时后进行第二次注浆。第二次注浆压力不变,直至压不进为止。

    对松散砂砾层及回填土层,顶进中需用水泥浆液进行土壤加固。

    根据本工程特点,初步设计每节管都设置注浆孔,依次调整注浆孔的位置,确保每个方向都能注浆润滑。 

    总注浆量应不小于管外环形空间体积的2倍,考虑到泥浆的漏失,必须经常性地连续补浆,确保泥浆套的完整。

   (3)、注浆减磨要点:

      1)、选择优质的触变泥浆材料,对膨润土取样测试。主要指标为造浆率、失水量和动塑比。

      2)、在管子上预埋压浆孔,压浆孔的设置要有利于浆套的形成。

      3)、膨润土的贮藏及浆液配制、搅拌、膨胀时间,听取供应商的建议但都必须按照规范进行,使用前必须先进行试验。    

      4)、压浆方式要以同步注浆为主,补浆为辅。在顶进过程中,要经常检查各推进段的桨液形成情况。

      5)、注浆设备和管路要可靠,具有足够的耐压和良好的密封性能。在注浆孔中设置一个单向阀,使浆液管外的土不能倒灌而堵塞注浆孔,从而影响这浆效果。

      6)、注浆工艺由专人负责,质量员定期检查。

      7)、注浆泵选择脉动小的螺杆泵,流量与顶进速度相应配。

      8)、由于顶管线路长,为使全程注浆压力不致相差过大,在中间还将每隔400m增设压浆泵以增大压力。

 

泥浆处理系统

     3.8、操作控制系统

由一名受过高度训练的操作人员,在地面控制室外内操作并仔细检测着整个操作系统、观察掘进机内的土压、油压、激光束位置。控制台提供操作数据和控制整套系统的电子按钮。控制板可以是人工控制方向和数据记录,或者是全自动控计算机控制方向和记录,其他的工作人员则负责井内管道和顶铁的更换以及进行、进排泥管和电缆的连接。当掘进机到达接收井时,挖掘会暂时中断,如果遇到有地下水或软土层时,还需有洞口止水圈安装在接收口墙上。最后,掘进机头从土层出来进接收井,就完成整个管道的铺装。这以后,掘进机被撤走,建造人工出口,接收井被关闭。一个工程常常有几个掘进段组成,这时,在工作井内的顶进设备变换方向,重新开始另一方的顶进工作,这个过程每过一个工作井重复二次,最后铺设成了整个下水道或输送管道。

     3.9、进出洞口措施

洞口采用高压旋喷桩加固,另在洞口处采取止水装置。

顶进前,为防止洞口处的水土沿工具管外壁与洞门的间隙涌入工作井,在工作井内洞口处安装一道止水装置。在顶进施工过程中又可防止减摩浆从此处流失,保证泥浆套的完整,以达到减小顶进阻力的效果。

     3.10、长距离顶管通风机管线布置

通风是不容忽视的问题。在顶进超过40m以上时,操作人员在管子内要消耗大量的氧气,而管内会出现缺氧,还有一些有害气体夹杂其间。为了操作人员健康及安全,必须靠通风设施来解决。我们采用鼓风机和抽风机相结合的方式来解决这一问题,将鼓风机和抽风机安装在工作坑的上方,以塑料管通入管道内。

      在管子内有电缆,照明电线,水管,输油管,通风管等各种管线,一般均悬挂在管子顶壁及侧壁上,为保证施工有条不紊,预先在管子内壁上设置固定装置。做这些管线时,一定要作好接头,弯头的处理,并经常检查。管内采用12V低压照明。

   3.11、顶管施工过程中应注意的问题

     (1)、当掘进机停止工作时,一定要防止泥水从土层或洞口及其 它地方流失。不然,挖掘面就会失稳,尤其是在进洞这一段时 间内更应防止洞口止水圈漏水。

     (2)、在掘进过程中,应注意观察地下水压力、泥水仓水压力的变化,并及时采取相应的措施和对策,只有这样才能保持挖掘 面的平衡稳定。

     (3)、在顶进过程中,随时要注意挖掘面是否稳定,要不时检查泥水的浓度和相对密度是否正常,还要注意进排泥泵的流量及压力是否正常。应防止排泥泵的排量过小而造成排泥管的淤泥 和堵塞现象。

     (4)、压浆孔的处理,顶管顶进完成后,对管节上的压浆孔进行封堵措施。

     3.12、顶管施工测量和方向控制

       3.12.1、测量及控制指标

为了保证顶进轴线控制在设计轴线允许偏差范围内,在顶进过程中要密切注意激光点的偏向。轴线测量的控制系统设在工作井内液压主顶装置中间。施工中需经常对控制台进行复测,以保证测量精度,控制台基础应用混凝土浇筑在沉井底板上。按独立坐标系放样后用测量控制台使它精确地移动至顶管轴线上,用它正确指挥顶管的施工方向。

       3.12.2、施工顶管测量和方向控制

在后顶观察台架设J2型激光经仪一台,通过后视测机头的光靶及后标点的水平角和竖直角各一测回,编排程序计算顶管的头部及尾部的平面及高程,测量与方向控制要点如下:①、有严格的放样复核制度,并做好原始记录。顶进前必须遵守严格的放样复测制度,坚持三级复测:施工组测量员项目管理部监理工程师,确保测量万无一失。②、布设在工作井后方的仪座必须避免顶进时移位和变形,必须定时复测并及时调整。③、顶进纠偏必须勤测量、多微调,纠偏角度保持在10’20’不得大于0.5°。并设置偏差警戒线。④、初始推进阶段,方向主要是主顶油缸控制,因此,一方面要减慢主顶推进速度,另一方面要不断调整油缸编组和机头纠偏。⑤、开始顶进前必须制定坡度计划,对每一米、每节管的位置、标高需事先计算,确保顶进时正确,以最终符合设计坡度要求和质量标准为原则。

顶管施工过程测量,采用激光导向控制系统,测量仪器位于顶进后方,在主顶设备后方底板砼上,预埋钢板,做托架,调整到所需的标高及管线轴线方向后,对准掘进机内定位光靶上,并使其在监控显示屏上反映出来。操作人员根据投影影像判断顶进偏差情况。顶进刚进入土层时,每顶进0.3m测量一次,顶进34节后,正常顶进,每顶进1m测量一次,在进入接收井前30m范围增加测量频率,每顶进0.3m测量一次。

        3.13施工常见风险及应急措施

       3.13.1工程风险分析:

          1、支撑变形较大或失稳

          2、地面沉降、隆起

          3、地质发生很大的变化,突然间变硬或变软

         4、在顶管施工过程中,如果出现异常的偏差或纠偏失效

         5、顶进管道渗水

         6、注浆措施

       3.13.2应急措施:

        1、支撑变形较大或失稳

     现场备足钢支撑、型钢、水泥及砂石料,并确保挖掘机、点焊接、搅拌机、喷浆机运转良好,放置在不影响施工的地方。    

          对支撑除按规定频率进行检测外,暴雨后应加强对支撑端头的检查,若有脱落或移位的迹象应及时整改。加强司机安全教育严防挖掘机和其他工程机械碰撞钢支撑,造成钢支撑脱落。

        支撑失稳或脱落后,在设计位置的左右及下方及时架设临时支撑,然后再恢复设计位置的支撑。

        2、地面沉降、隆起

           在顶管通过路面设置观测点,发现沉降超过警戒值应立即停止作业,必须找出原因,及时调整方案并采取相应措施后才可继续施工。如沉降发生得到控制,则按调整方案继续施工。

           如沉降发生不能得到控制,应停止顶管作业,马上进行换浆工作,保证地面的稳定,确保路面的安全。   

           在顶管的施工过程中做好换浆工作,在一段管道顶进完成后,及时换浆,一般以3天为一个周期,将水泥浆从注浆高于膨润土注浆的压力注入,把顶管前面的第一节的注浆孔打开,使膨润土泥浆流出,直到有水泥砂浆压出时,再把注浆孔塞上,换浆后管的周围有充分的水泥浆,经过一段时间后,水泥浆溶入粉砂土中,最终改变了土质和管壁合成一体,可充分保证塌陷问题的产生。在顶通前应做好出洞前的准备工作,在机头出洞后及时将机头和连接的管道分离,机头及时吊出井外,在第一时间抓紧处理井内泥浆和进行洞口封门,保证洞内土体和水量不流失,保证管道沉降得到控制。 根据检测数据调整减阻泥浆注浆量,减少管节背土现象,控制地面沉降。

    3、地质发生很大的变化,突然间变硬或变软。

     可以通过刀盘的扭矩来判断,如果突然变硬了,则像水仓加入水或泥浆,掘进机上设有加浆孔,其目的就是用来加泥的。

   4、在顶管施工过程中,如果出现异常的偏差或纠偏失效的质量措施

     必须在允许偏差标准以内就停下来,分析原因,找出对策再继续顶进,切不可盲目行动。操作人员必须严格遵守这样一条规定:无论何种情况,超过允许偏差一律停下来,并且如实汇报情况,以便分析原因,找准对策。

   5、顶进管道渗水

            安全预防措施: 顶进过程中地层受力变化、顶进机头突然出现栽头后进行纠偏造成管口接口错口位置设专人监视;若发现出现渗漏,应及时处理。应急措施:当漏水量较小时,采用在漏水处附近钻孔,向管外注入聚氨酯,利用聚氨酯遇水固化的化学特点,进行止水;当漏水较大时,采用高效速凝水泥临时封堵部分漏洞,并加设引流管,控制漏水尽量少冲刷高效速凝水泥封口,待速凝水泥达到一定的强度时,在漏点附近钻孔注入速凝液浆进行堵漏。

      6、注浆措施

    布孔原则:注浆孔眼的位置及数量,则需根据不同地质情况进行合理安设。打孔的方法可视施工条件采用机械(钻岩机)方法。灌浆孔眼的小则需根据灌浆嘴或灌浆钢管大小确定,一般钻孔孔径要比灌浆嘴或灌浆管12mm.

灌浆是整个化学灌浆的中心环节,须待一切准备工作完成后再进行,灌浆前必须有组织地进行分工,固定岗位,尤其需要有专职熟练人员进行操作,其操作程序如下:灌浆前应对整个灌浆系统进行全面检查,在灌浆机具运转正常,管路畅通情况下,方可进行灌浆。对于垂直裂缝一般自下而上灌浆,水平裂缝(横向缝)由一端向另一端或从两端向中间进行灌浆,对集中漏水应先对漏水量的孔洞进行灌浆,在有条件的情况下,横缝也可以几个嘴同时灌浆。将灌浆系统和灌浆嘴牢固联结,打开排水阀门,使水从排水阀门中流出。开放灌浆系统的全部阀门并起动压力泵,待浆液从排水阀门中流出后,即关闭排水阀门,继续加压进行正常灌浆。

       3.14、顶管施工具体过程

       1、洞口破除

顶进基坑:顶管导轨及机头安装就位后,用风镐对预留洞口进行破除,破除后的洞口应为圆形,圆心与管道中心保持一致,洞口直径大于管道外径10cm。预留洞口破除到位后,顶进。

       2、开机头:

用吊车(260吨)将现场的管道吊入基坑内,当机头就位后,首先接通机头刀盘旋转电源,开动刀盘使其向左或向右旋转,再接通进泥泵和排泥泵电源,泥浆由进泥管进到泥水平衡仓,充满泥水平衡仓,由出泥管回到泥浆池,形成循环泥浆管路。再接通机头刀盘顶进电源,使刀盘主轴向前行进,同时开动基坑内顶镐,推动机头向前行进,当顶进1节管的长度后,关闭机头进泥阀门和出泥阀门,并使用排泥泵将管路中的泥浆抽空,若已顶进3节管后,应在顶进时注入触变泥浆。卸掉基坑内各种接头软管和电缆管路,使主顶镐回缩,移走顶铁,用吊车将混凝土管下到位,重新快速连接各种接头软管和电缆管路,使顶管就位,重复以上操作步骤循环顶进。在顶进过程中预先在确定的管道点位向管壁外侧同步注入泥浆,以减少侧壁顶进时的阻力,并支撑周围的土层。

        3、顶管顶进:

        3.1顶管机头安装到轨道上,复核管道中心与顶管机头后,顶管机头顶进,顶进机头在没有全部进入洞时,在机头中心、高程偏差不大于±20mm,不考虑纠偏,如中心、高程偏差大于±20mm,及时确定纠偏方案,纠偏高程时,轨道上管要加配重,纠偏中心时,轨道管两侧要加支撑。

        3.2每节顶管吊至坑内导轨上,测量管道中心线及前后端管底高程,检查合格后,顶进至前一节管后端,并与之连接。在安装顶管时,顶管接口胶圈施工,严格按照设计和规范要求实施。

        3.3试顶:本次施工主顶设备均选用1.0m冲程的油缸,前端有环形顶铁连接。在顶管顶进一段距离后,要加设弧形活动顶铁,做一次顶进再下后一节管时,可将其吊移。在正式顶进前,对所有机器、电路、油路及其它设备进行最后一次测试。无误后即开始顶进。

        3.4洞口封闭安装后,先不转刀盘将机头缓慢平推入洞内。顶进时进泥流量控制在0.4-0.6m³/min。此时泥水分两部分流出,一部分由机头外流出井,另一部分由机头出泥管排出。

        3.5初始顶进的速度控制主要是机头吃土,机头克服刀盘旋转产生的扭矩,靠的是机头重量产生的与轨道的摩擦力,如果盘刀吃土太深扭矩大,机头会旋转,所以顶进速度不要太快,第一节管进洞阶段,刀盘速度控制在10-20mmmin,此阶段重点是找正管子中心、高程,偏差控制在±5mm之内;进泥流量控制在0.6-0.8m³/min,泥浆由顶管机出泥管排入砂水分离设备。 机头全部入土后,高程、中心偏差大于±10mm要纠偏,此时纠偏用机头纠偏设备。初始顶进最终把中心控制在5mm以内,高程控制在+10mm以内,为后面的掘进打下好基础。

       3.6当主顶油缸顶进一段距离后,掘进机机头进入止水圈接触到坑外侧土体,机头刀片开始工作,掘进出的土体在切削刀盘内粉碎,进入泥浆舱,在那里与泥浆混合,泥浆通过排泥管输送到地面上。掘进机完全进入土层后,电缆及泥浆管拆除,下第一节顶管,将其推到掘进机尾套处与掘进机头连接,顶进,每节顶管顶进均安装前一节顶管后连接进行顶进。 顶管施工中,为了使挖掘面保持稳定,必须在泥水舱中充满一定压力和相对密度在1.2左右的泥水,泥水在挖掘面上形成一层不透水的泥膜,它可以阻止泥水向挖掘面里面渗透。同时,泥水本身具有一定压力,可以用来平衡地下水压力和土压力。开挖面的泥水平衡是使泥水舱内保持一定压力,使其与地下水压力相平衡。泥水压力过大,地面隆起;泥水压力过小,地面沉陷。因此每段顶管施工前根据此段穿越土层及地下水位情况设定泥水舱基准面泥浆压力。 当偏差流量为正值时,顶管机处于“超挖”状态,偏差流量为负值时,顶管机处于“溢水”状态,当发现掘削量过大时,应立即检查泥水密度、粘度和切口水压,查明原因后应及时调整相关参数,确保开挖面稳定。

        3.7当掘进机或前面几节工作管进入土体后,在安装下一节管子时,主顶油缸回缩,此时由于主动土压力的作用,常会造成掘进机和管子的后退,前端土体也随之滑裂,推进方向出现偏差。

        3.8顶进机头入土后,机头后方连续放置注浆管,顶进时不断注浆充填水泥浆使浆液在管外壁形成比较完整的浆套.

           3.15顶管过312国道和娄江河施工措施

       1、顶进过程中,及时注入触变泥浆,以保证土体稳定和机头正面压力。

       2、 顶进速度应适中。过快,产生偏差后不易纠正;过慢,易出现坍塌。

       3、 顶进一旦开始,应连续进行。如遇下列情况时,应暂停顶进,并应及时处理:a.顶管掘进机前方遇到障碍;b.后背墙变形严重;c.顶铁发生扭曲现象;d.管位偏差过大且校正无效;e.顶进力超过管端的允许顶力;f.油泵、油路发生异常现象;g.接缝中漏泥浆。   

       4、顶管掘进机进入土层过程中,每顶进300mm,测量不应少于一次;管道进入土层后正常顶进时,每顶进l 000mm,测量不应少于一次,纠偏时应增加测量次数。顶进纠偏必须勤测量、多微调,纠偏角度应保持在10′~20′,不得大于0.50,并设置偏差警戒线。

       5、 顶管掘进机开始顶进5~10m的范围内,允许偏差应为:轴线位置3mm,高程0~13 mm。当超过允许偏差时,应采取措施纠正。在软土层中顶进混凝土管时,为防止管节飘移,可将前3~5节管与顶管掘进机联成一体。

       6、顶管掘进机切入土体后,应严格控制其水平偏差不大于5mm,其高程应为设定标高加上抛高数,其数值可根据土质情况、管径大小、顶管掘进机的自重以及顶进坡度等因素确定,以抵消机头到达接收坑后的磕头而引起的误差。当出现磕头现象时应迅速调整,必要时应拉回后重新顶进,但必须抓紧时间迅速完成,以减少对正面土体的扰动。

       7、严格控制进水量和泥浆出水量,保持压力平衡。

       8、顶管出洞时要防止泥浆泄露,加强补浆措施。必要时采取封门措施。 8、采取泥浆置换措施:顶管施工结束后,采用水泥浆置换顶进时注入的触变泥浆。

       9、管内钢管敷设时,钢管每道焊缝必须经过拍片检测,达到II级片以上才可以施工,

文章地址:/Show/?Cid=459

页面版权所有 爱体育中国体育官方网站 Copyright © 2017 All Right Reserved.

服务电话:0512-57996299     总部地址:江苏省昆山市玉山镇宝益路5号    

邮箱:js_kssj@163.com    网址:/